手动插板阀 插板门 方闸门 螺旋闸门

用途
螺旋闸门是一种粉料、晶粒料、颗粒料及小块物料的流量或输送量的主要控制设备,广泛应用于矿山、粮食等行业控制流量变化或迅速切断(特料直径≤50mm)
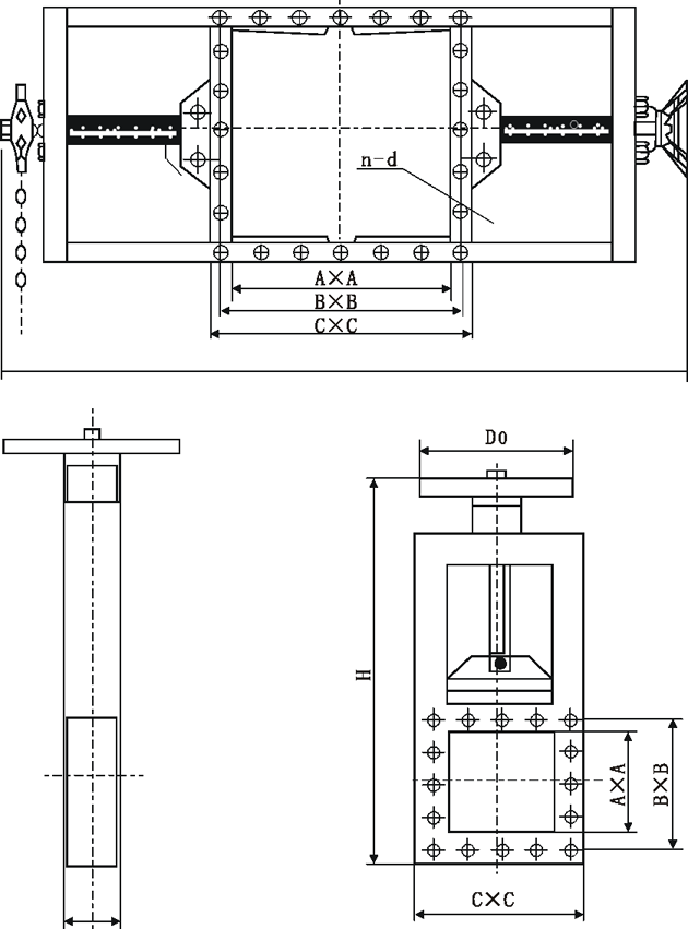
| 类别Category | A×A | B×B | C×C | L | H | D0 | n-d |
单向 One-way | 220×200 | 256×256 | 296×296 | 100 | 820 | 300 | 8-φ12 |
| 250×250 | 306×306 | 346×346 | 100 | 930 | 340 | 8-φ14 |
| 300×300 | 356×356 | 396×396 | 100 | 1050 | 380 | 8-φ14 |
| 400×400 | 456×456 | 496×496 | 100 | 1140 | 445 | 12-φ14 |
| 450×450 | 510×510 | 556×556 | 120 | 1450 | 530 | 12-φ18 |
| 500×500 | 560×560 | 606×606 | 120 | 1610 | 580 | 16-φ18 |
双向 Two-way | 600×600 | 660×660 | 706×706 | 120 | 1830 | 450 | 16-φ18 |
| 700×700 | 770×770 | 820×820 | 140 | 2130 | 450 | 20-φ18 |
| 800×800 | 870×870 | 920×920 | 140 | 2440 | 450 | 20-φ18 |
| 900×900 | 974×974 | 1030×1030 | 160 | 2660 | 450 | 24-φ23 |
| 1000×1000 | 1074×1074 | 1130×113 | 160 | 2870 | 450 | 24-φ23 |
| 说明Specification | LMD-单向 LMD one-way | Ⅰ-手轮 I hand wheel | 链条节数M=0.105×-113(×是丝杆中心离地面高度)距地面小于1.7米用于手轮大于1.7米用链轮 Number of chain nodes M = 0.105×-113 (× means the distance of lead screw center from surface); use hand wheel if the height is less than 1.7 m; use chain wheel if the height is more than 1.7 m. |
LMD-双向 LMD two-way | Ⅱ-链条 II chain |
注:可来图来样定作非标的螺旋闸门
Note: Non-standard screw gate valve could be customized based on drawing or sample.
关键词:手动插板阀 插板门 方闸门 螺旋闸门