Q347Y美标固定球阀产品说明:
美标球阀是新一代高性能球阀,适用于长输管线和一般工业管线,其强度、安全性、耐恶劣环境性等在设计时进行了特殊考虑,适用于各种腐蚀性和非腐蚀性介质。它与浮动球阀相比,工作时,阀前流体压力在球体上产生的作用力全部传递给轴承,不会使球体向阀座移动,因而阀座不会承受过大的压力,所以固定式球阀的转矩小、阀座变形小,密封性能稳定、使用寿命长,适用于高压、大口径场合。先进的弹簧预阀座组件,具有自紧特性,实现上游密封。每阀有两个阀座,每个方向都能密封,因而安装没有流向限制,是双向。
Q347Y美标固定球阀适用介质:水、气、油品、天然气和酸碱腐蚀性介质。适用温度:-196~350℃,驱动方式:手动、气动、电动、液动等。广泛适用于食品、医药、石油、化工、天然气、钢铁、环保、造纸等输送管路介质的切断或流通。还可给这一装置注射相应的清洗剂或润滑剂对密封面进行清洗。
Q347Y美标固定球阀主要性能规范:
试验压力 (Mpa) | 公称压力(Mpa) | 压力级(Class) | JIS(Mpa) |
1.6 | 2.5 | 4.0 | 6.4 | 10.0 | 150 | 300 | 400 | 600 | 900 | 10K | 20K |
强度试验 | 2.4 | 3.8 | 6.0 | 9.6 | 15.0 | 3.1 | 7.8 | 10.2 | 15.3 | 23.1 | 2.4 | 3.8 |
密封试验 | 1.8 | 2.8 | 4.4 | 7.0 | 11.0 | 2.2 | 5.6 | 7.5 | 11.2 | 16.8 | 1.5 | 2.8 |
气密试验 | 0.5~0.7 |
工作温度 | PTFE≤150℃ PPL≤300℃ 碳纤≤350℃ |
适用介质 | C:水、油、蒸气 P:硝酸类(温度≤200℃ )R:醋酸类(温度≤200℃ ) |
驱动方式 | 手动、气动、电动、液动等 |
Q347Y美标固定球阀主要零部件材料:
阀体 | 阀杆 | 阀球 | 密封面 | 垫片 | 填料 | 工作温度 | 适用介质 |
WCB | 1Cr13 | 1Cr13 | 1Cr13 | 柔性石墨 | 柔性石墨 | -29-425℃ | 水、蒸汽、油品 |
WC6 | 15CrMo | 15CrMo |
| -29-425℃ |
WC9 | 25Cr2MoV | 25Cr2MoV | 司太立合金 | 不锈钢加柔性石墨 | 编结石墨 |
|
LCB | 304 | 304 |
|
| -46-354℃ |
CF8 | 304 | 304 | 本体材料 | 08软钢 | -196-600℃ | 部分酸、碱 |
CF3 | 304L | 304L |
|
CF8M | 316 | 316 | F304 F316 |
CF3M | 316L | 316L |
|
Q347Y美标固定球阀制造标准:
设计依据 | 国标系列 | 美标系列 |
设计标准 | GB/T12237 | AP16D | ANSI B16.34 |
法兰连接结构长度 | GB/T12221 | AP16D | ANSI B16.10 |
结构长度(焊接) | GB/T15188.1 | AP16D | ANSI B16.10 |
连接法兰 | GB/T9113 JB/T79 Hg20592 | ANSI B16.5、B16.47 |
对焊端 | GB/T12224 | ANSI B16.25 |
试验和检验 | GB/T9092 | AP16D | AP1598 |
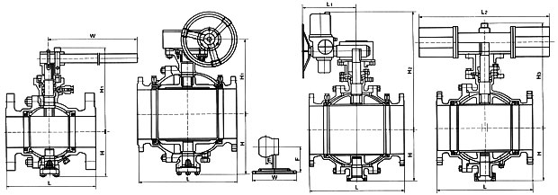
Q347Y美标固定球阀主要连接尺寸及重量

Class 150Lb
公称通经DN | NPS | 2" | 3" | 4" | 6" | 8" | 10" | 12" | 14" | 16" | 18" | 20" |
DN | 50 | 80 | 100 | 150 | 200 | 250 | 300 | 350 | 400 | 450 | 500 |
d1 | 51 | 76 | 102 | 152 | 203 | 254 | 305 | 337 | 387 | 438 | 489 |
L | RF | 178 | 203 | 229 | 394 | 457 | 533 | 610 | 686 | 762 | 864 | 914 |
BW | 216 | 283 | 305 | 457 | 521 | 559 | 635 | 762 | 838 | 914 | 991 |
H1 | 100 | 110 | 130 | 175 | 210 | 274 | 305 | 340 | 395 | 440 | 470 |
H | 165 | 90 | 200 | 270 | 300 | 380 | 420 | 450 | 530 | 560 | 605 |
W | 400 | 700 | 850 | 600 | 600 | 600 | 800 | 800 | 800 | 800 | 800 |
E | - | - | - | 116 | 116 | 116 | 171 | 171 | 257 | 257 | 257 |
F | - | - | - | 350 | 350 | 350 | 420 | 420 | 500 | 500 | 500 |
WT(KG) | 24 | 50 | 75 | 195 | 280 | 440 | 570 | 800 | 1480 | 2350 | 2400 |
|
|
|
|
|
|
|
|
|
|
|
|
|
|
Class 300Lb
公称通经DN | NPS | 2" | 3" | 4" | 6" | 8" | 10" | 12" | 14" | 16" | 18" | 20" |
DN | 50 | 80 | 100 | 150 | 200 | 250 | 300 | 350 | 400 | 450 | 500 |
d1 | 51 | 76 | 102 | 152 | 203 | 254 | 305 | 337 | 387 | 438 | 489 |
L | RF | 178 | 203 | 229 | 394 | 457 | 533 | 610 | 686 | 762 | 864 | 914 |
BW | 216 | 283 | 305 | 457 | 521 | 559 | 635 | 762 | 838 | 914 | 991 |
H1 | 100 | 110 | 130 | 175 | 210 | 274 | 305 | 340 | 395 | 440 | 470 |
H | 165 | 90 | 200 | 270 | 300 | 380 | 420 | 450 | 530 | 560 | 605 |
W | 400 | 700 | 850 | 600 | 600 | 600 | 800 | 800 | 800 | 800 | 800 |
E | - | - | - | 116 | 116 | 116 | 171 | 171 | 257 | 257 | 257 |
F | - | - | - | 350 | 350 | 350 | 420 | 420 | 500 | 500 | 500 |
WT(KG) | 30 | 58 | 95 | 210 | 318 | 440 | 575 | 800 | 1840 | 2700 | 2890
|