产业链

您当前的位置:

上海浩添工业设备有限公司>吨袋拆包站

上海浩添工业设备有限公司

高级会员第12年
所在地区:上海
认证信息:商安信认证
吨袋拆包站
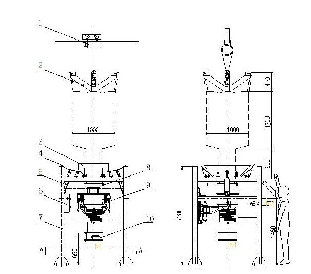
拆包机-吨袋拆包站
价  格1元
  • 品牌
    上海浩添
    型号
    HT-DJJ4
  • 产地
    中国上海
    关注度
    559
  • 信息完整度
    整机功率
    3
  • 外形尺寸
    1800*1800*5400
    拆包量
    10包/h
  • 拆包重量
    1000-1500kg
    生产能力
    10包/h
索取资料及报价
产品简介

hkty_meitu_1
系统特点:
• 开袋站结构简单,便于操作;
• 拍打装置可以保障物料顺利从大袋中卸出;
• 全自动化操作,提高生产效率,降低劳动强度;
• 密闭式开袋,杜绝粉尘飞扬,改善工作环境,降低生产成本;
• 可选开袋、拍打、破碎、磁选等一体化设计,结构紧凑,操作方便;
• 可提供气动或电动控制方式,实现远程监控;
• 适用工况:流动性不好、易吸潮、结块物料的大袋包装物料。


装置组成:
  本系统由电动葫芦起吊装置、设备支架、气动夹带装置、气动拍打装置、缓存料仓,纯气动控制器及辅助连接部分的设备元件共同组成。
   与物料接触部分采用316L不锈钢、304不锈钢,支架采用304不锈钢/Q235碳钢,表面亚光,保护完好。设备总高度5410mm,长宽各1800mm,设备底脚(四只)采用不锈钢板打孔,用膨胀螺栓固定于地面.