进口直通篮式过滤器|进口直通平底篮式过滤器|进口直通弧底篮式过滤器|进口立式除污器
品牌:德国沃德WODE
德国沃德WODE进口篮式过滤器主要由接管、筒体、滤篮、法兰、法兰盖及紧固件等组成。安装在管道上能除去流体中的较大固体杂质,使机器设备(包括压缩机、泵等)、仪表能正常工作和运转,达到稳定工艺过程,保障安全生产的作用。
进口直通篮式过滤器结构原理:
当液体通过筒体进入滤篮后,固体杂质颗粒被阻挡在滤篮内,而洁净的流体通过滤篮、由过滤器出口排出。当需要清洗时,旋开主管底部螺塞,排净流体,拆卸法兰盖,清洗后重新装入即可。因此,使用维护极为方便。
进口直通篮式过滤器作用:
篮式过滤器用于油或其它液体管道上,过滤管道里的杂物,过滤孔面积比通径管面积大于2~3倍.远远超过Y型、T型过滤器过滤面积。过滤器精度在过滤器中属于一种精度zui佳的过滤器,滤网结构与其它过滤网不一样,形状像篮子。
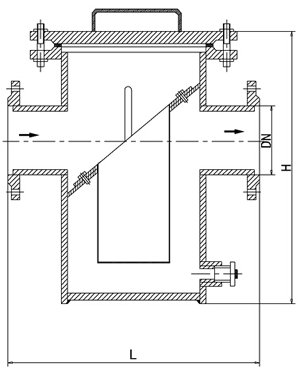
进口直通篮式过滤器结构图:

进口篮式过滤器主要技术参数
壳体材质 | WCB、 H2 、304 、316L或者+ 衬氟 |
过滤芯件 | 304、 316L、 PTFE |
螺栓螺母 | 20# 、304、 316L |
过滤精度 | 10~300目 |
密封垫片 | NE、R PTFE |
环境温度 | +450~-30 |
公称压力 | 0~10.0MPa 、150~600LB |
连接形式 | 法兰、 螺纹、 对焊 |
法兰标准 | GB 、HG、 SH、 JB 、ANSI、 JIS 、DIN |
注:由于网站版面的原因,具体外形尺寸结构图纸请致电沃德WODE阀门各代理商。
进口篮式过滤器特点及适用范围
该过滤器具有结构紧凑、过滤能力大、压损小、适用范围广、维护方便等优点。
其主要适用的物料有:
1、化工、石油化工生产中弱腐蚀性物料,如:水、油品、氨、烃类等。
2、化工生产中的腐蚀性物料,如:烧碱、纯碱、浓稀硫酸、碳酸、醛酸等。
3、制冷中的低温物料,如:液甲烷、液氨、液氧和各种冷剂。
4、食品、制药生产中有卫生要求的物料,如:啤酒、饮料、乳制品、糖浆等。
订货时请注明尺寸、操作压力、滤芯材质、过滤介质及过滤精度。
当需要其他标准法兰、材质或操作压力时请在订货时注明。
关于更多直通篮式过滤器详细资料请致电联系德国沃德WODE授权一级代理商:北京永德宝阀门有限公司